Miljö- och Avskiljaranläggningar
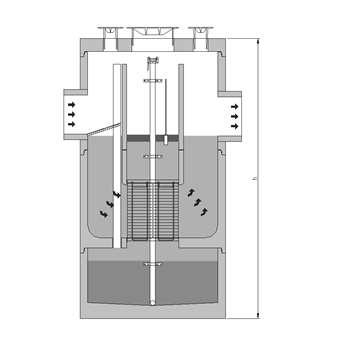
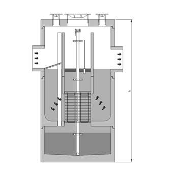
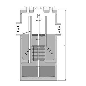
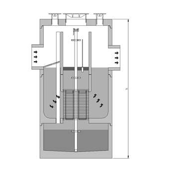
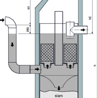
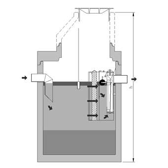
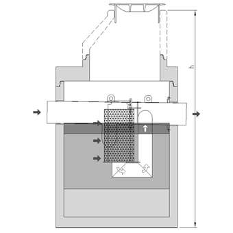
Avskiljare används om spillvattnet innehåller mer än obetydliga mängder av bensin, olja, fett eller slam som medför risk för avsättning. Benders sortiment består av Sand- och slamavskiljare, Koalescensoljeavskiljare Klass I, Lamelloljeavskiljare Klass I, Tungmetallavskiljare, Fettavskiljare, Utjämningsmagasin och Minireningsverk. Det är en stor fördel att använda Avskiljarna i betong, de är bl.a. uppbyggda av hållfasthetsklassade betongdelar och kan utan extra förstärkningsåtgärder läggas under trafikerad yta. Risken för uppflytning är liten och normalt behövs inte förankring. Vid högt grundvattenstånd och tömd brunn bör dock risken beaktas och vid behov används utkragande botten som förankring. Betongens tyngd och hållfasthet är en stor fördel vid anläggningsarbetet, återfyllningen blir enklare att utföra och tunga packningsredskap kan användas. Kringfyllningsmaterial kan ha 90 mm kornstorlek (detta gäller betongprodukter större än DN 300). En anläggning av betong håller i många år och tål stort slitage. Det är exempelvis ingen risk att väggarna skadas av sugredskapen vid tömning av en avskiljare.
Färg
- Grå
Välj modell
Dokument
Hållbara VA-System
Många mil med mer än hundra år gamla betongrör ligger idag under våra fötter och med sin långsiktiga hållbarhet, långa livslängd och minimala underhållsbehov har betong blivit ett av världens viktigaste och mest använda byggmaterial.






Tak
Mark
Natursten
Infrastruktur
VA-System
Grund
Murblock
Dörr